
The Yin-Yang House is a single-family home in a quiet Venice, Ca neighborhood. the design objective was to create a space for a large and growing family with several children, which would create a calm, relaxed and organized environment that emphasizes public family space.

The home is also meant to serve as a place to entertain and a welcoming space for teenagers as they seek social space with friends. the home is organized around a series of courtyards and other outdoor spaces that integrate with the interior of the house.

Facing the street the house appears to be solid. However, behind the steel entry door is a courtyard, which reveals the indoor-outdoor nature of the house behind the solid exterior. From the entry courtyard, the entire space to the rear garden wall can be seen; the first clue of the home’s spatial connection between inside and out.

These spaces are designed for entertainment, and the 50 foot sliding glass door to the living room enhances the harmonic relationship of the main room, allowing the owners to host many guests without the feeling of being overburdened.

The tensions of the house’s exterior are subtly underscored by a 12-inch steel band that hews close to, but sometimes rises above or falls below the floor line of the second floor – a continuous loop moving inside and out like a pen that is never lifted from the page, but reinforces the intent to spatially weave together as a single space the indoors with the outside space.

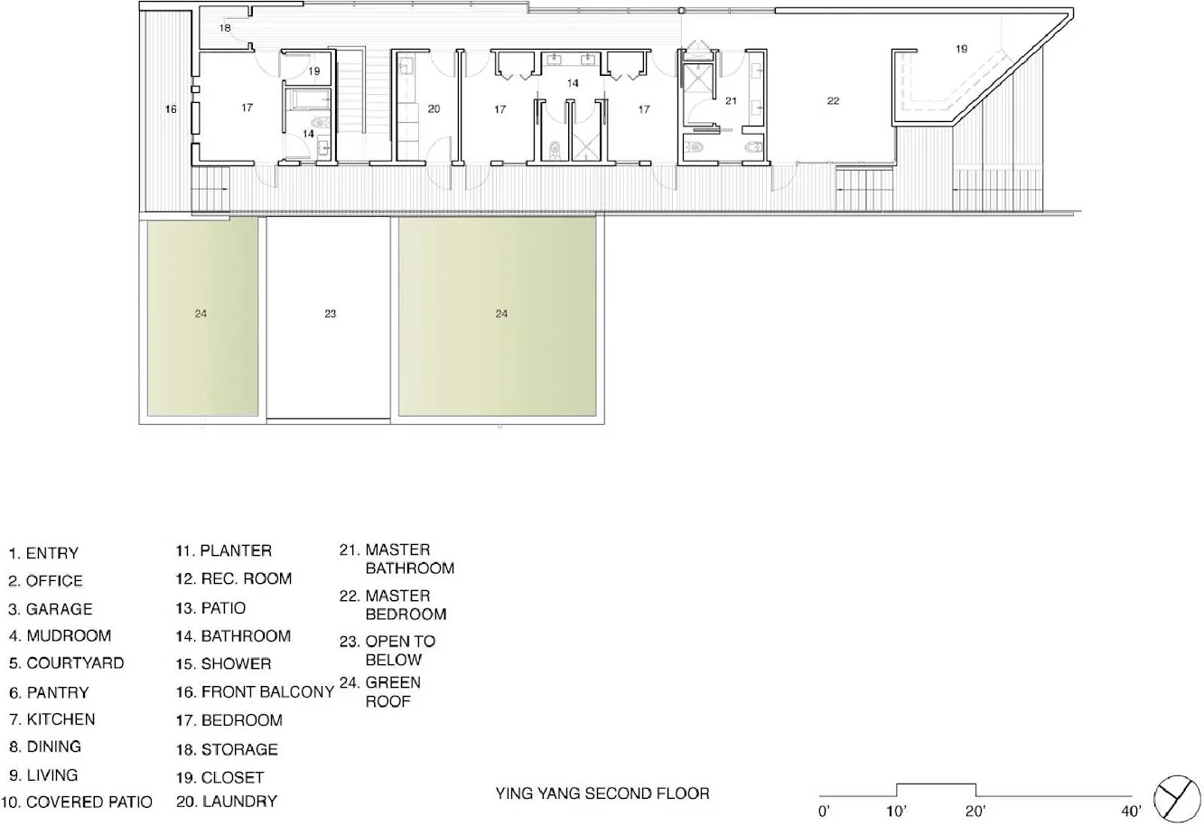
Scale manipulation also plays a formal role in the design of the structure. From the back, the house appears to be a single-story volume. the large master bedroom window and the outdoor steps are scaled to support this illusion. It is only when the steps are animated with people that one realizes the true scale of the house is two stories.

The kitchen is the heart of the house, with an open working area that allows the owner, an accomplished chef, to chat with friends while cooking. Bedrooms are intentionally designed to be very small and simple, to provide larger public spaces, emphasizing the family over individual domains.

The breakfast room looks across an outdoor courtyard to the guest room/kids playroom, establishing a visual connection while defining the separation of uses. the children can play outdoors while under adult supervision from the dining area or the office, or do homework in the office while adults occupy the adjacent outdoor or indoor space.

Many of the materials used, including the bamboo interior, composite stone and tile countertops and bathroom finishes are recycled, and reinforce the environmental Dna of the house, which also has a green roof. Blown-in cellulose insulation, radiant heating and a host of other sustainable features aids in the performance of the building’s heating and cooling.

The active systems in the home include a 12 Kw solar photovoltaic panel system, the largest such residential system available on the market. the solar panels also provide shade from the sun, preventing the house from becoming overheated. the owners have been in the home for over nine months and have yet to receive a power bill.








Location: Venice, Ca, Usa Architect: Brooks + ScarpaArchitects Principal Designer: Lawrence Scarpa Design Team: Ching Luk, Emily Hodgdon General Contractor: Glenn Lyons Construction Structural Engineer: Charles Tan Solar Panels: M & M Solar Area: 4,700 sf Cost: Usd 1.7 Mullion Year: 2011